- Home
- Commercial
- Mixed Use
- #102 1118 12 Avenue SW, Calgary, Alberta, T2R 0P4
#102 1118 12 Avenue SW, Calgary, Alberta, T2R 0P4
Beltline, Calgary
- A2280718
- MLS Number
- 2008
- Year Built
Property Description
Exceptional main-floor commercial condo located in the heart of the Beltline, one of Calgary’s most vibrant and walkable urban communities, known for its strong daytime and evening foot traffic.
Located in the Nova Building, part of a 550-unit condominium complex on 12 Avenue SW, this highly visible unit benefits from a built-in residential customer base and excellent exposure along busy 12 Avenue.
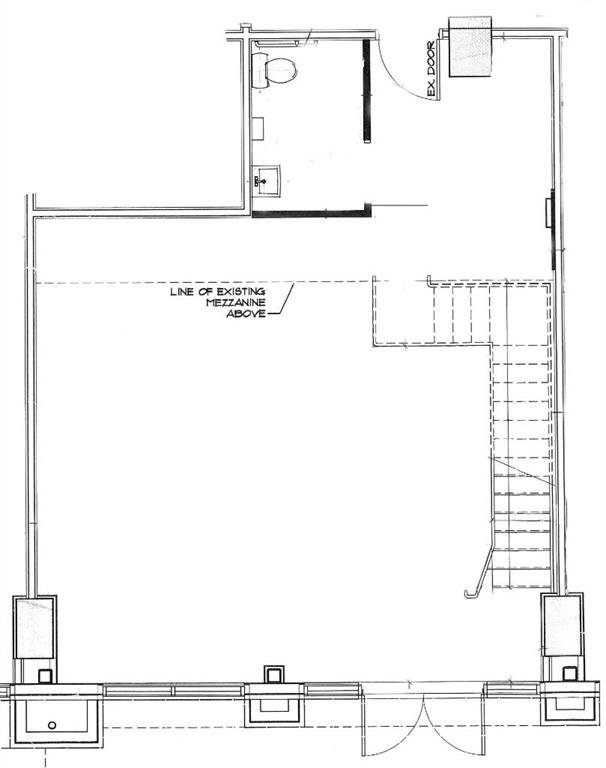
The open-concept main floor features dramatic double-height windows, filling the space with natural light and creating an inviting atmosphere. The flexible layout is ideal for retail, office, or professional services. A bright mezzanine-level office overlooks the main floor, providing an open, connected workspace perfect for administrative or consulting use.
A prime opportunity for owner-users or investors. Book your showing today. See attached brochure for more details.
Property Details
-
Property Type Mixed Use, Commercial
-
MLS Number A2280718
-
Year Built 2008
-
Property Status Active
-
Parking 1
-
Brokerage name RE/MAX First
Features & Amenities
Similar Listings
#6 11010 46 Street SE, Calgary, Alberta, T2C 1G4
- $887,750
- $887,750
- Office, Commercial
5 minutes ago
5 minutes ago
#20 34 Wrangler Place SE, Calgary, Alberta, T2H 0K2
- $14
- $14
- Industrial, Commercial
37 minutes ago
37 minutes ago
#2 4616 6A Street NE, Calgary, Alberta, T2E 4B5
- $565,000
- $565,000
- Industrial, Commercial
10 hours ago
10 hours ago
18 hours ago
Are you interested in #102 1118 12 Avenue SW, Calgary, Alberta, T2R 0P4?
For over two decades, home buyers and sellers have come to depend on us for our expertise in buying and selling their properties.
LEt's Get Started
Work With Us
With years of experience helping local home Buyers and Sellers just like yourself in Cochrane and Calgary, Alberta, we know how to find the finest real estate properties and help you negotiate the best rates.
This site is protected by reCAPTCHA and the Google Privacy Policy and Terms of Service apply.
