- Home
- Residential
- Row/Townhouse
- 86 Heirloom Passage SE, Calgary, Alberta, T3S 0K1
86 Heirloom Passage SE, Calgary, Alberta, T3S 0K1
Rangeview, Calgary
- A2295919
- MLS Number
- 3
- Bedrooms
- 3
- Bathrooms
- 1546.00
- sqft
- 0.02
- Lot sqft
- 2026
- Year Built
Property Description
LOOKING TO FIND IT ALL DOWN SOUTH AND CALL RANGEVIEW HOME?
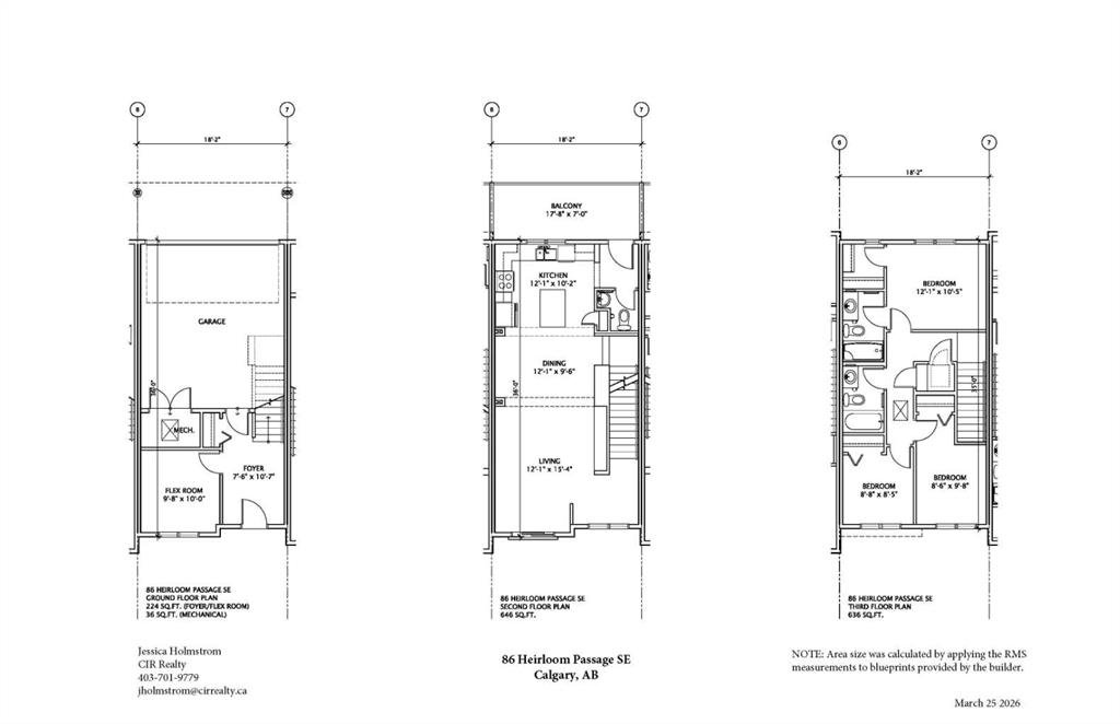
At 1,546 SQ.FT., this 3-storey townhome adds something most don’t—A FULL FLEX ROOM ON THE GROUND FLOOR that actually changes how the home lives. Set it up as a guest room, home office, workout space, library, craft room, or a quiet escape from everything happening upstairs—it’s one of those spaces that ends up being used more than you expected. Pair that with the DOUBLE ATTACHED GARAGE and a proper foyer, and the entry level finally feels like it’s pulling its weight.
The second floor opens up where it matters—living, dining, and kitchen flowing together, plus a FULL-WIDTH REAR BALCONY stretching nearly 18 feet across and 7 feet deep with a BBQ gas line. The kitchen steps ahead of standard with a CHIMNEY HOOD FAN, PENDANT LIGHTING over the island, QUARTZ SURFACES, and BLACK HARDWARE AND FIXTURES. There’s also a pocket of extra space near the stairs to the upper floor—ideal for a desk, command centre, or reading nook.
Upstairs, you’ve got 3 bedrooms, including a primary with WALK-IN CLOSET AND ENSUITE, plus a main bath and upper laundry that keeps the routine simple. The WEST-FACING FRONT brings great light into the secondary bedrooms, while the rear side of the home catches that softer morning sun through the kitchen, balcony, and primary.
With estimated possession in December 2026, you’ve got time to plan your move without the usual scramble. And in Poppy at Rangeview, you’re stepping into a community built around a true GARDEN-TO-TABLE LIFESTYLE—COMMUNITY GARDENS, ORCHARDS, GREENHOUSES, and GATHERING SPACES like Harvest Hall and Market Square woven together with parks, wetlands, and pathways. It’s designed to bring people outside, together, and actually connected to where they live.
If you’ve made it this far, you’re not just browsing—visit the Rangeview community and see how it all fits together.
• PLEASE NOTE: Photos are of a DIFFERENT Spec Home of the same model – fit and finish may differ. Interior selections and floorplans shown in photos.
Property Details
-
Property Type Row/Townhouse, Residential
-
MLS Number A2295919
-
Property Size 1546.00 sqft
-
Bedrooms 3
-
Bathrooms 3
-
Garage 1
-
Year Built 2026
-
Property Status Active
-
Parking 2
-
Brokerage name CIR Realty
Features & Amenities
- Asphalt Shingle
- Balcony
- Balcony s
- BBQ gas line
- Concrete Driveway
- Dishwasher
- Double Garage Attached
- Electric Range
- Forced Air
- Garage Control s
- Garage Door Opener
- High Ceilings
- High Efficiency
- Humidity Control
- Insulated
- Kitchen Island
- Microwave
- Natural Gas
- Open Floorplan
- Park
- Playground
- Private Entrance
- Quartz Counters
- Range Hood
- Refrigerator
- Storage
- Townhouse
- Walk-In Closet s
- Wired for Data
Similar Listings
2536 chicoutimi Drive NW, Calgary, Alberta, T2L 0W5
- $899,000
- $899,000
- Beds: 3
- Baths: 3
- 1844.00 sqft
- Detached, Residential
1 minute ago
1 minute ago
420 Cranberry Circle SE, Calgary, Alberta, T3M 0L8
- $549,900
- $549,900
- Beds: 3
- Baths: 3
- 1401.00 sqft
- Detached, Residential
1 minute ago
1 minute ago
#301 7301 Valleyview Park SE, Calgary, Alberta, T2B 3R6
- $265,000
- $265,000
- Beds: 2
- Baths: 2
- 940.00 sqft
- Apartment, Residential
1 minute ago
1 minute ago
9 Panton View NW, Calgary, Alberta, T3K 0W2
- $529,900
- $529,900
- Beds: 3
- Baths: 3
- 1485.00 sqft
- Semi Detached (Half Duplex), Residential
1 minute ago
1 minute ago
Are you interested in 86 Heirloom Passage SE, Calgary, Alberta, T3S 0K1?
For over two decades, home buyers and sellers have come to depend on us for our expertise in buying and selling their properties.
LEt's Get Started
Work With Us
With years of experience helping local home Buyers and Sellers just like yourself in Cochrane and Calgary, Alberta, we know how to find the finest real estate properties and help you negotiate the best rates.
This site is protected by reCAPTCHA and the Google Privacy Policy and Terms of Service apply.
