- Home
- Residential
- Semi Detached (Half Duplex)
- 80 Heritage Manor, Cochrane, Alberta, T4C 3K8
80 Heritage Manor, Cochrane, Alberta, T4C 3K8
NONE, Cochrane
- A2293313
- MLS Number
- 3
- Bedrooms
- 3
- Bathrooms
- 1806.00
- sqft
- 0.07
- Lot sqft
- 2026
- Year Built
Property Description
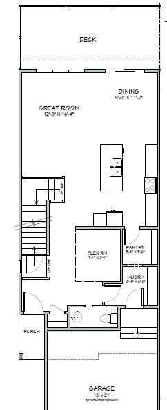
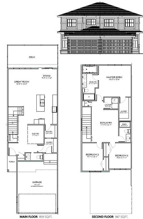
OPEN HOUSE – SATURDAY and SUNDAY – MAY 16 and 17 – 1PM to 4PM – WALK-OUT BASEMENT, SOUTH FACING BACKYARD, 22 FEET WIDE DECK WITH PANORAMIC VIEWS !!!!! Welcome to the Harris-ll, located in the newly developed community of West Hawk — a peaceful, nature-inspired neighborhood surrounded by scenic mountain views and steps from future parks. This thoughtfully designed home opens to a charming foyer that leads to a versatile flex room, a convenient half bathroom with vanity sink, and a direct access to the double car garage. At the rear of the home, the L-shaped kitchen with 42″ cabinetry overlooks a spacious great room and dining area and a 22 feet wide deck overlooking a spacious backyard and — perfect for entertaining family and friends. Upstairs, you’re welcomed into a centrally located, spacious bonus room—perfect for family time or a cozy retreat. The second floor also features a large primary bedroom complete with a walk-in closet and private 5-piece ensuite. A spacious bonus room, two generously sized secondary bedrooms, a full bathroom, and a convenient laundry room complete the upper level. QUARTZ COUNTERTOPS THROUGHOUT, ALL UNDERMOUNT SINKS, POT LIGHTS IN KITCHEN INCLUDED, 9 FEET BASEMENT CEILING. Call now for more details !!! Interior pictures are for reference only and from other listing (108 Heritage Manor)
Property Details
-
Property Type Semi Detached (Half Duplex), Residential
-
MLS Number A2293313
-
Property Size 1806.00 sqft
-
Bedrooms 3
-
Bathrooms 3
-
Garage 1
-
Year Built 2026
-
Property Status Active
-
Parking 4
-
Brokerage name URBAN-REALTY.ca
Features & Amenities
- 2 Storey
- Asphalt Shingle
- Attached-Side by Side
- BBQ gas line
- Breakfast Bar
- Deck
- Dishwasher
- Double Garage Attached
- Electric Range
- Forced Air
- Full
- Garage Control s
- High Ceilings
- Kitchen Island
- Lighting
- Microwave Hood Fan
- Natural Gas
- Pantry
- Playground
- Private Entrance
- Private Yard
- Quartz Counters
- Refrigerator
- Schools Nearby
- Separate Entrance
- Shopping Nearby
- Sidewalks
- Soaking Tub
- Street Lights
Similar Listings
96 Fireside Common, Cochrane, Alberta, T4C 3J1
- $660,000
- $660,000
- Beds: 3
- Baths: 3
- 1675.00 sqft
- Detached, Residential
52 minutes ago
52 minutes ago
1306 Jumping Pound Common, Cochrane, Alberta, T4C 2L1
- $385,000
- $385,000
- Beds: 2
- Baths: 3
- 1462.53 sqft
- Row/Townhouse, Residential
10 hours ago
10 hours ago
214 Greystone Boulevard, Cochrane, Alberta, T4C 3K3
- $539,900
- $539,900
- Beds: 3
- Baths: 3
- 1627.70 sqft
- Semi Detached (Half Duplex), Residential
24 hours ago
24 hours ago
202 Greystone Boulevard, Cochrane, Alberta, T4B 5M1
- $449,900
- $449,900
- Beds: 3
- Baths: 3
- 1520.60 sqft
- Semi Detached (Half Duplex), Residential
24 hours ago
24 hours ago
Are you interested in 80 Heritage Manor, Cochrane, Alberta, T4C 3K8?
For over two decades, home buyers and sellers have come to depend on us for our expertise in buying and selling their properties.
LEt's Get Started
Work With Us
With years of experience helping local home Buyers and Sellers just like yourself in Cochrane and Calgary, Alberta, we know how to find the finest real estate properties and help you negotiate the best rates.
This site is protected by reCAPTCHA and the Google Privacy Policy and Terms of Service apply.
