- Home
- Residential
- Row/Townhouse
- 707 Sovereign Common SW, Calgary, Alberta, T3C 3Y3
707 Sovereign Common SW, Calgary, Alberta, T3C 3Y3
Shaganappi, Calgary
- A2279504
- MLS Number
- 2
- Bedrooms
- 3
- Bathrooms
- 1307.00
- sqft
- 2025
- Year Built
Property Description
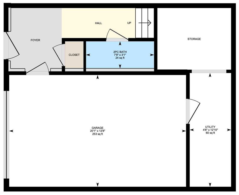
Welcome to one of the last remaining brand-new Manhattan models at Crown Park – Calgary’s newest inner-city community. Featuring over 1,300 ft2 of living space, this home features 2 bedrooms, 2.5 bathrooms and a private single attached garage. This thoughtfully designed 3-storey city townhome offers an open-concept floor plan with all the luxuries you could desire in your next home. The contemporary design centers the living room between the kitchen and dining area, creating the perfect space for entertaining guests. The home boasts 9-foot ceilings on the main level, providing a bright and inviting atmosphere throughout the day. The gourmet kitchen is upgraded with full-height soft-close cabinetry to the ceiling, quartz countertops, and a suite of stainless-steel appliances, including an electric cooktop, chimney hood fan, and a built-in microwave & oven. The intelligent back-to-back design of this townhome maximizes space, creating an expansive main living area with a wall of windows and access to a private balcony that spans nearly 19′ wide. The upper level features a primary bedroom with its own en suite, complete with a walk-in shower and walk-through wardrobe. A second generously sized bedroom, an additional full bathroom, and convenient upper-level laundry round out the upper level. The expansive balcony spans ~19’x7′ and is the perfect outdoor living space complete with BBQ gas-line and A/C rough-in. Completing the home is a private oversized attached garage which is the perfect space to keep your vehicle and valuables safe all year long. Crown Park is one of the city’s most coveted developments due to its prominent location near the Shaganappi golf course, walkability to transit, and easy access to downtown’s countless amenities. This property is perfect for those who enjoy proximity to walking trails along the Bow River, dog-friendly parks, and local hot spots for dining and entertainment. The home comes complete with an extended 3-year workmanship warranty, complimentary legal fees, and full Alberta New Home Warranty – offering peace of mind and an easy transition into your new home. Ideal for young professionals, this brand new home is move-in ready at the most competitive prices ever seen at this stunning new development.
Property Details
-
Property Type Row/Townhouse, Residential
-
MLS Number A2279504
-
Property Size 1307.00 sqft
-
Bedrooms 2
-
Bathrooms 3
-
Garage 1
-
Year Built 2025
-
Property Status Active
-
Parking 1
-
Brokerage name Charles
Features & Amenities
- 3 or more Storey
- Asphalt Shingle
- Balcony
- Balcony s
- BBQ gas line
- Built-In Oven
- Dishwasher
- Dryer
- Electric Cooktop
- Forced Air
- Golf
- Microwave
- No Animal Home
- No Smoking Home
- Open Floorplan
- Pantry
- Park
- Playground
- Quartz Counters
- Range Hood
- Refrigerator
- Rough-In
- Schools Nearby
- Shopping Nearby
- Sidewalks
- Single Garage Attached
- Street Lights
- Vinyl Windows
- Walk-In Closet s
- Walking Bike Paths
- Washer
Similar Listings
108 Woodmont Drive SW, Calgary, Alberta, T2W 4M3
- $719,000
- $719,000
- Beds: 3
- Baths: 3
- 1474.11 sqft
- Detached, Residential
11 minutes ago
11 minutes ago
40 Henefer Road SW, Calgary, Alberta, T2V 3B4
- $725,000
- $725,000
- Beds: 4
- Baths: 3
- 1054.74 sqft
- Detached, Residential
11 minutes ago
11 minutes ago
#122 400 Auburn Meadows Common SE, Calgary, Alberta, T3M 2X7
- $399,900
- $399,900
- Beds: 2
- Baths: 2
- 958.70 sqft
- Apartment, Residential
11 minutes ago
11 minutes ago
#313 2300 Evanston Square NW, Calgary, Alberta, T3P 0G8
- $234,900
- $234,900
- Bed: 1
- Bath: 1
- 581.90 sqft
- Apartment, Residential
11 minutes ago
11 minutes ago
Are you interested in 707 Sovereign Common SW, Calgary, Alberta, T3C 3Y3?
For over two decades, home buyers and sellers have come to depend on us for our expertise in buying and selling their properties.
LEt's Get Started
Work With Us
With years of experience helping local home Buyers and Sellers just like yourself in Cochrane and Calgary, Alberta, we know how to find the finest real estate properties and help you negotiate the best rates.
This site is protected by reCAPTCHA and the Google Privacy Policy and Terms of Service apply.
