- Home
- Residential
- Detached
- 5036 Vanstone Crescent NW, Calgary, Alberta, T3A 0V9
5036 Vanstone Crescent NW, Calgary, Alberta, T3A 0V9
Varsity, Calgary
- A2300377
- MLS Number
- 3
- Bedrooms
- 3
- Bathrooms
- 1779.19
- sqft
- 0.15
- Lot sqft
- 1966
- Year Built
Property Description
|| OPEN HOUSE THIS SATURDAY 2-4 pm + SUNDAY 2-4 pm || This home is a love letter to design and craftsmanship. Featured on the cover of Western Living Magazine’s inaugural Design Award edition.
A 1966 split-level in Varsity, reimagined with the kind of craft and intention that becomes obvious the moment you step inside.
The interior was stripped to the studs and rebuilt. New insulation, electrical, plumbing, ductwork, flooring, triple pane windows, and roof. This is not a cosmetic renovation. Every element was built with intention and care.
The design was led by Studio North, a Calgary-based firm known for creating spaces that are as functional as they are striking. The living area ceiling was vaulted to double height with curved geometry, flooding the home with light. Custom rattan millwork screens are featured throughout the home, beautiful and functional. Built-in planters bring greenery into the everyday. The original brick fireplace was transformed into a sculptural centrepiece. The kitchen is fully renovated with new cabinets and appliances, the primary bedroom has a new ensuite. Douglas fir, golden oak, and brass throughout. Nothing feels like an afterthought.
Beauty in a home matters. It slows you down and makes ordinary moments feel better. The split-level layout creates natural separation between spaces, with quiet nooks throughout, the kind of spaces that make working from home something you look forward to.
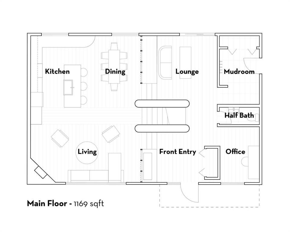
Three bedrooms, 2.5 baths, finished basement, 2,413 sqft total living space on a 55 x 120 foot lot. A new rear deck steps out to a backyard with mature trees, privacy, and landscaping that took decades to grow.
Varsity puts you five minutes from Nose Hill Park, Market Mall, the University of Calgary, and a short walk to Dalhousie C-Train station.
This is where a life well lived happens.
Property Details
-
Property Type Detached, Residential
-
MLS Number A2300377
-
Property Size 1779.19 sqft
-
Bedrooms 3
-
Bathrooms 3
-
Garage 1
-
Year Built 1966
-
Property Status Active
-
Parking 2
-
Brokerage name Charles
Features & Amenities
- 3 Level Split
- Asphalt Shingle
- Basement
- Blower Fan
- Deck
- Dishwasher
- Double Garage Detached
- Dryer
- Fireplace s
- Forced Air
- Garden
- Gas
- Gas Range
- Great Room
- Kitchen Island
- Natural Gas
- Open Floorplan
- Park
- Partial
- Playground
- Private Yard
- Raised Hearth
- Schools Nearby
- Shopping Nearby
- Sidewalks
- Street Lights
- Vaulted Ceiling s
- Walking Bike Paths
- Washer
- Window Coverings
- Wood Burning
Similar Listings
#1901 1088 6 Avenue SW, Calgary, Alberta, T2P 5N3
- $749,000
- $749,000
- Beds: 2
- Baths: 3
- 2047.60 sqft
- Apartment, Residential
21 minutes ago
21 minutes ago
#8 4360 58 Street NE, Calgary, Alberta, T1Y 4S4
- $350,000
- $350,000
- Beds: 4
- Baths: 2
- 1091.06 sqft
- Row/Townhouse, Residential
36 minutes ago
36 minutes ago
#1203 19489 Main Street SE, Calgary, Alberta, T3M 3J3
- $324,900
- $324,900
- Beds: 2
- Baths: 2
- 722.00 sqft
- Apartment, Residential
36 minutes ago
36 minutes ago
10 Evansbrooke Place NW, Calgary, Alberta, T3P 1G3
- $774,900
- $774,900
- Beds: 4
- Baths: 4
- 2205.00 sqft
- Detached, Residential
36 minutes ago
36 minutes ago
Are you interested in 5036 Vanstone Crescent NW, Calgary, Alberta, T3A 0V9?
For over two decades, home buyers and sellers have come to depend on us for our expertise in buying and selling their properties.
LEt's Get Started
Work With Us
With years of experience helping local home Buyers and Sellers just like yourself in Cochrane and Calgary, Alberta, we know how to find the finest real estate properties and help you negotiate the best rates.
This site is protected by reCAPTCHA and the Google Privacy Policy and Terms of Service apply.
