- Home
- Residential
- Row/Townhouse
- 50 Creekside Way SW, Calgary, Alberta, T2X 6E2
50 Creekside Way SW, Calgary, Alberta, T2X 6E2
Pine Creek, Calgary
- A2300544
- MLS Number
- 4
- Bedrooms
- 4
- Bathrooms
- 1312.66
- sqft
- 0.03
- Lot sqft
- 2026
- Year Built
Property Description
OPEN HOUSE on Saturday AND Sunday from 12-5pm. Please go to the Show Home located at 96 Creekside Drive SW for access.Welcome to this brand-new fully finished townhome by StreetSide Developments in the thoughtfully designed community of Sirocco in south Calgary. Surrounded by parks, pathways, and a scenic central pond, Sirocco offers a peaceful neighborhood atmosphere where outdoor living and quiet moments are part of everyday life. With nearby amenities, shopping, and convenient access to major routes, residents enjoy the perfect balance of natural surroundings and city connectivity. Proximity to Sirocco Golf Club further enhances the open, green feel of this growing community.
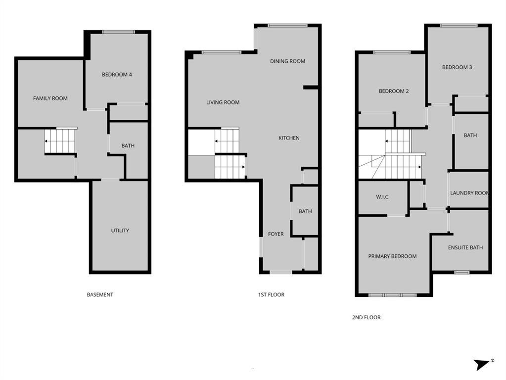
This fully finished two-storey townhome offers exceptional flexibility with four bedrooms and four bathrooms across three levels of developed living space. The main floor features a bright open-concept layout connecting the kitchen, dining area, and living room, creating a comfortable space for both everyday living and entertaining. The kitchen is beautifully finished with modern slab-style cabinetry featuring 42” upper cabinets, a full bank of drawers, soft-close doors, polished white quartz countertops, tile backsplash, stainless steel Whirlpool appliances, and a polished chrome Moen high-arc faucet with pull-down sprayer. Luxury vinyl plank flooring runs throughout the main living areas, bathrooms, and laundry room, while contemporary lighting selected by professional designers completes the modern interior.
Upstairs, you’ll find three bedrooms including a spacious primary suite with a private full ensuite. An additional full bathroom and the convenience of upper-floor laundry enhance the functionality of the upper level.
The fully finished lower level expands the home’s versatility with a fourth bedroom, full bathroom, and family room — ideal for guests, teenagers, a home office, or additional living space.
Additional features include a single attached garage with opener, driveway and an additional titled parking stall,, high-efficiency gas furnace, digital thermostat, 50-gallon electric hot water tank, energy-efficient dual-pane windows with low-E coating, sound attenuation system for increased privacy between units, and a natural gas BBQ line on the patio or balcony. Durable exterior cladding with vinyl siding and fibre cement panels, along with lifetime limited warranty roof shingles, ensures long-term performance and curb appeal.
Offering modern construction, thoughtful design, and a location centered around green space and lifestyle, this home represents an outstanding opportunity to own a brand-new property in one of Calgary’s emerging south communities.
Property Details
-
Property Type Row/Townhouse, Residential
-
MLS Number A2300544
-
Property Size 1312.66 sqft
-
Bedrooms 4
-
Bathrooms 4
-
Garage 1
-
Year Built 2026
-
Property Status Active
-
Parking 3
-
Brokerage name RE/MAX Realty Professionals
Features & Amenities
- 2 Storey
- Asphalt Shingle
- Deck
- Dishwasher
- Driveway
- Dryer
- Electric Stove
- Forced Air
- Full
- Garage Control s
- High Ceilings
- Kitchen Island
- Microwave Hood Fan
- Natural Gas
- No Animal Home
- No Smoking Home
- Open Floorplan
- Other
- Pantry
- Park
- Playground
- Pond
- Quartz Counters
- Refrigerator
- Schools Nearby
- Shopping Nearby
- Sidewalks
- Single Garage Attached
- Stall
- Street Lights
- Walk-In Closet s
- Walking Bike Paths
- Washer
Similar Listings
76 Carringsby Avenue NW, Calgary, Alberta, T3P 1R9
- $669,800
- $669,800
- Beds: 3
- Baths: 3
- 1952.70 sqft
- Detached, Residential
2 minutes ago
2 minutes ago
71 Evansfield Rise NW, Calgary, Alberta, T3P 0L9
- $879,000
- $879,000
- Beds: 3
- Baths: 4
- 2266.00 sqft
- Detached, Residential
2 minutes ago
2 minutes ago
322 Mckenzie Towne Link SE, Calgary, Alberta, T2Z 4E8
- $404,900
- $404,900
- Beds: 3
- Baths: 2
- 1259.00 sqft
- Row/Townhouse, Residential
2 minutes ago
2 minutes ago
#702 1540 29 Street NW, Calgary, Alberta, T2N 4M1
- $279,000
- $279,000
- Beds: 2
- Bath: 1
- 912.90 sqft
- Row/Townhouse, Residential
2 minutes ago
2 minutes ago
Are you interested in 50 Creekside Way SW, Calgary, Alberta, T2X 6E2?
For over two decades, home buyers and sellers have come to depend on us for our expertise in buying and selling their properties.
LEt's Get Started
Work With Us
With years of experience helping local home Buyers and Sellers just like yourself in Cochrane and Calgary, Alberta, we know how to find the finest real estate properties and help you negotiate the best rates.
This site is protected by reCAPTCHA and the Google Privacy Policy and Terms of Service apply.
