- Home
- Land
- Residential Land
- 4220 Centre Street NE, Calgary, Alberta, T2E 2Y9
4220 Centre Street NE, Calgary, Alberta, T2E 2Y9
Highland Park, Calgary
- A2300778
- MLS Number
- 0.13
- Lot sqft
Property Description
Exceptional MU-1 Development Opportunity – DP Approved & Ready to Build!
Prime inner-city CORNER LOT offering MU-1 zoning—allowing for mixed-use development with commercial at grade and up to 6 storeys (5 residential above). Positioned on a high-exposure intersection with strong street visibility, this is a rare opportunity for builders and investors to step into a fully entitled development with no delays, demolition, or uncertainty remaining.
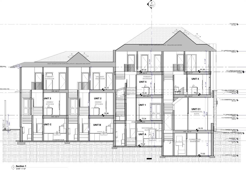
The offering includes a fully approved Development Permit for a thoughtfully designed project featuring a 4-plex with 8 residential units plus 2 commercial spaces, along with a 4-stall carport providing convenient parking solutions. All architectural drawings, DSSP documents, and supporting planning materials are included, significantly reducing soft costs and accelerating the development timeline.
Site preparation is fully complete, including demolition, asbestos remediation, and utility removals—allowing for immediate transition to excavation and construction. This is a true ready-to-build opportunity with substantial value already invested into approvals and pre-development work.
Located in a rapidly evolving inner-city area, the site benefits from strong redevelopment momentum, surrounding investment activity, and long-term growth fundamentals. The MU-1 zoning provides exceptional flexibility for mixed-use design, making this an ideal opportunity for both experienced developers and long-term investors seeking scalable returns.
This offering includes the land, fully approved plans, permits, and all completed pre-construction work—delivering a streamlined, near turn-key development opportunity in a high-demand location. A rare chance to acquire a fully prepared project and bring it to completion.
Property Details
-
Property Type Residential Land, Land
-
MLS Number A2300778
-
Property Status Active
-
Brokerage name Jessica Chan Real Estate & Management Inc.
Features & Amenities
Similar Listings
1336 36 Street SE, Calgary, Alberta, T2A 1C3
- $525,000
- $525,000
- Residential Land, Land
10 hours ago
10 hours ago
1916 & 1928 Home Road, Calgary, Alberta, T1X 0Y4
- $1,895,000
- $1,895,000
- Residential Land, Land
12 hours ago
12 hours ago
358 Saddlecrest Circle NE, Calgary, Alberta, T3J 0Z2
- $380,000
- $380,000
- Residential Land, Land
16 hours ago
16 hours ago
1931 28 Avenue SW, Calgary, Alberta, T2T 1K2
- $1,550,000
- $1,550,000
- Residential Land, Land
3 days ago
3 days ago
Are you interested in 4220 Centre Street NE, Calgary, Alberta, T2E 2Y9?
For over two decades, home buyers and sellers have come to depend on us for our expertise in buying and selling their properties.
LEt's Get Started
Work With Us
With years of experience helping local home Buyers and Sellers just like yourself in Cochrane and Calgary, Alberta, we know how to find the finest real estate properties and help you negotiate the best rates.
This site is protected by reCAPTCHA and the Google Privacy Policy and Terms of Service apply.
