- Home
- Commercial
- Mixed Use
- Retail
- #3190 28 Kingsview Road SE, Airdrie, Alberta, T4A 3L7
#3190 28 Kingsview Road SE, Airdrie, Alberta, T4A 3L7
Kingsview Industrial Park, Airdrie
- A2299336
- MLS Number
- 2019
- Year Built
Property Description
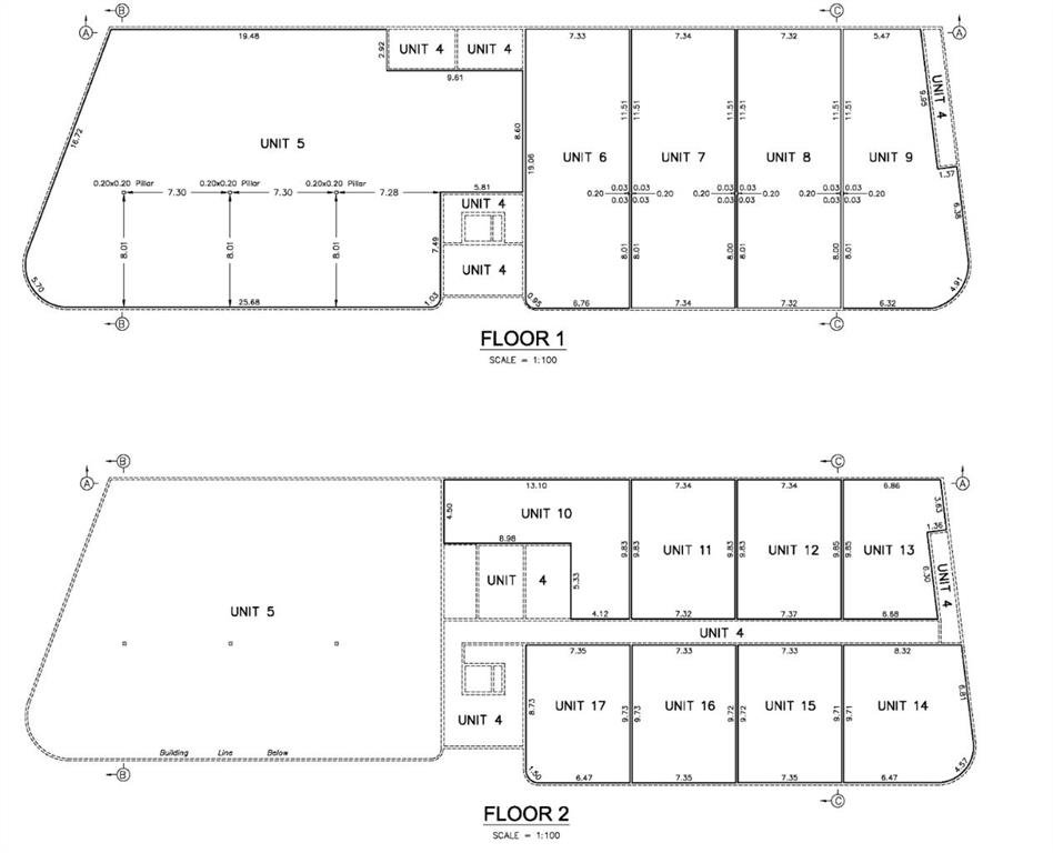
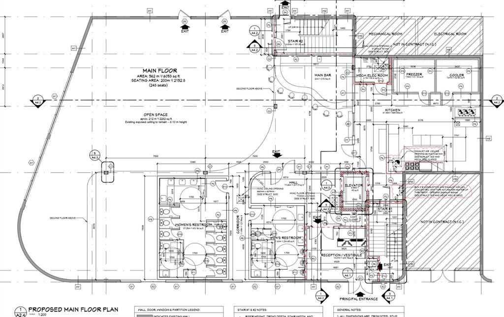
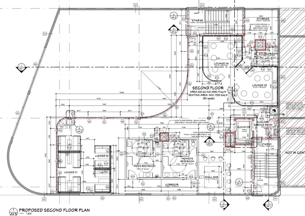
Rare opportunity to purchase a 6,235 sq. ft. shell condominium unit in a prime Airdrie location with excellent visibility from the QE2 and convenient access from Yankee Valley Blvd. This versatile commercial space offers ample parking, 24-foot ceiling height, and outstanding potential for a variety of permitted uses.
A major feature of the property is the existing City approval for a second floor, allowing for expansion to approximately 10,000 sq. ft. The current owner also has approval in place for restaurant use, creating an excellent opportunity for hospitality, retail, office, or other commercial ventures. The generous ceiling height allows the option to add additional floor area or maintain an open-concept layout with the potential for impressive floor-to-ceiling glass.
Zoned IB-1, this unit offers flexibility for a range of commercial and employment uses. A strong opportunity for owner-users, investors, or developers seeking exposure, accessibility, and future upside in one of Airdrie’s key commercial corridors. Electrical power is 400A, 208/120V, 3 Phase, 4 wire (TBV). Condominium parking area includes a ratio of 4.1 parking stalls per 1,000sf.
Property Details
-
Property Type Retail, Mixed Use, Commercial
-
MLS Number A2299336
-
Year Built 2019
-
Property Status Active
-
Brokerage name CIR Realty
Features & Amenities
Similar Listings
2 weeks ago
#103 118 East Lake Boulevard NE, Airdrie, Alberta, T4A 2G2
- $15
- $15
- Industrial, Commercial
2 weeks ago
2 weeks ago
#102 118 East Lake Boulevard NE, Airdrie, Alberta, T4A 2G2
- $15
- $15
- Industrial, Commercial
2 weeks ago
2 weeks ago
#220 52 Gateway Drive NE, Airdrie, Alberta, T4B 0J6
- $974,900
- $974,900
- Office, Commercial
2 weeks ago
2 weeks ago
Are you interested in #3190 28 Kingsview Road SE, Airdrie, Alberta, T4A 3L7?
For over two decades, home buyers and sellers have come to depend on us for our expertise in buying and selling their properties.
LEt's Get Started
Work With Us
With years of experience helping local home Buyers and Sellers just like yourself in Cochrane and Calgary, Alberta, we know how to find the finest real estate properties and help you negotiate the best rates.
This site is protected by reCAPTCHA and the Google Privacy Policy and Terms of Service apply.
