- Home
- Residential
- Detached
- 30 Bridlecrest Road SW, Calgary, Alberta, T2Y 5J2
30 Bridlecrest Road SW, Calgary, Alberta, T2Y 5J2
Bridlewood, Calgary
- A2303074
- MLS Number
- 3
- Bedrooms
- 4
- Bathrooms
- 1608.94
- sqft
- 0.08
- Lot sqft
- 2006
- Year Built
Property Description
Meet “Branson” – Double Attached Garage | New Furnace (2026) | Meticulously Maintained – Where comfort, space, and meaningful updates come together in a home designed for real life. The main floor offers a bright, open layout that feels both functional and inviting, highlighted by a spacious living room with newer laminate flooring (2021) and a cozy gas fireplace that naturally anchors the space. The kitchen is well thought out with newer appliances, a corner pantry, and an eating bar that connects seamlessly to the dining area, making it ideal for both everyday living and hosting. Updated vinyl tile in the kitchen and entry (2021), along with a new microwave hood fan (2024) add a clean, modern touch where it matters most.
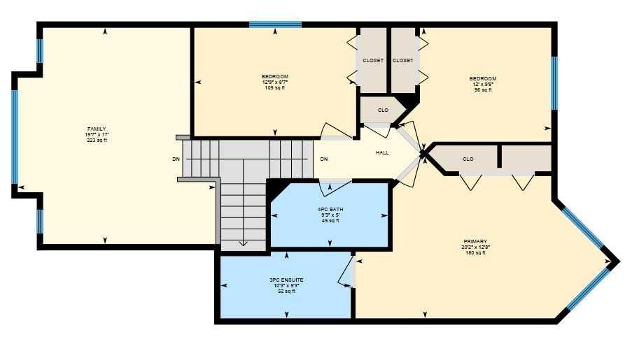
Upstairs, you’ll find new carpet throughout (2024), a large bonus room that gives you flexibility for a media space, playroom, or quiet retreat, along with two generously sized bedrooms and a bright, spacious primary bedroom complete with its own 3-piece ensuite and spacious closet. The fully finished basement extends the home’s versatility even further, offering a large open recreation room, a full 4-piece bathroom, and peace of mind with a brand new furnace (2026) that comes with a transferable warranty.
Outside, the home continues to deliver with a large backyard framed by mature columnar aspens, creating a quiet and secluded feel. The large aggregate patio is perfect for summer evenings, entertaining, or simply relaxing outdoors. Recent exterior updates, including new siding and a new garage door (2023), enhance both curb appeal and long-term value, while the double attached garage adds everyday convenience. A well-rounded home in an established community, offering the space, updates, and setting that are increasingly hard to find.
Property Details
-
Property Type Detached, Residential
-
MLS Number A2303074
-
Property Size 1608.94 sqft
-
Bedrooms 3
-
Bathrooms 4
-
Garage 1
-
Year Built 2006
-
Property Status Active
-
Parking 4
-
Brokerage name Renzo Real Estate Inc.
Features & Amenities
- 2 Storey
- Asphalt Shingle
- Breakfast Bar
- Closet Organizers
- Dishwasher
- Double Garage Attached
- Electric Stove
- Forced Air
- Full
- Gas
- Laminate Counters
- Microwave Hood Fan
- Natural Gas
- Park
- Patio
- Playground
- Private Entrance
- Private Yard
- Refrigerator
- Schools Nearby
- Shopping Nearby
- Sidewalks
- Storage
- Street Lights
- Tennis Court s
- Vinyl Windows
- Walking Bike Paths
- Washer Dryer
- Window Coverings
Similar Listings
92 Riverbrook Place SE, Calgary, Alberta, T2C 3P5
- $475,000
- $475,000
- Beds: 3
- Baths: 2
- 1118.67 sqft
- Detached, Residential
12 minutes ago
12 minutes ago
223 45 Street SW, Calgary, Alberta, T3C 2B4
- $893,000
- $893,000
- Beds: 4
- Baths: 2
- 1373.77 sqft
- Detached, Residential
12 minutes ago
12 minutes ago
57 Bridlecrest Court SW, Calgary, Alberta, T2Y 5J3
- $689,900
- $689,900
- Beds: 4
- Baths: 4
- 1775.00 sqft
- Detached, Residential
12 minutes ago
12 minutes ago
303 Wolf River Drive SE, Calgary, Alberta, T2X 6G6
- $513,450
- $513,450
- Beds: 3
- Baths: 3
- 1425.00 sqft
- Row/Townhouse, Residential
29 minutes ago
29 minutes ago
Are you interested in 30 Bridlecrest Road SW, Calgary, Alberta, T2Y 5J2?
For over two decades, home buyers and sellers have come to depend on us for our expertise in buying and selling their properties.
LEt's Get Started
Work With Us
With years of experience helping local home Buyers and Sellers just like yourself in Cochrane and Calgary, Alberta, we know how to find the finest real estate properties and help you negotiate the best rates.
This site is protected by reCAPTCHA and the Google Privacy Policy and Terms of Service apply.
