- Home
- Residential
- Semi Detached (Half Duplex)
- 2716 3 Avenue NW, Calgary, Alberta, T2N 0L7
2716 3 Avenue NW, Calgary, Alberta, T2N 0L7
West Hillhurst, Calgary
- A2280534
- MLS Number
- 4
- Bedrooms
- 5
- Bathrooms
- 2653.40
- sqft
- 0.07
- Lot sqft
- 2026
- Year Built
Property Description
Located in WEST HILLHURST, this modern SEMI-DETACHED NON SUITED infill delivers the kind of layout and design that simply works for inner-city living. Clean architecture, generous windows, and multiple outdoor spaces set the tone and well-suited for daily life near the river, downtown, and some of Calgary’s most established amenities.
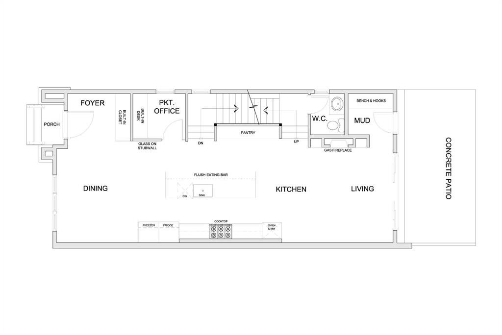
A defined foyer creates a proper sense of arrival and keeps the main living areas feeling calm and composed. Just off the entry, a POCKET OFFICE with built-ins and glass detailing offers a dedicated work or study space without disrupting the flow. The main floor opens into a dedicated dining area that naturally connects to the kitchen, creating an easy rhythm for daily life.
The kitchen anchors the home with a large island featuring bar seating and an integrated sink. The appliance layout is designed for real use, keeping prep and cooking zones efficient and intuitive, with a full-size side-by-side fridge/freezer, gas cooktop, and wall oven. A BUILT-IN PANTRY provides generous storage while maintaining clean sightlines. At the back of the home, the living room feels warm and inviting with a GAS FIREPLACE and expansive patio doors that open to the CONCRETE PATIO, extending the living space outdoors. A discreet powder room and a well-designed MUDROOM with BENCH AND HOOKS complete the main level.
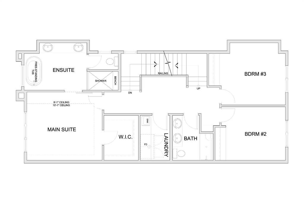
Upstairs, the second floor is dedicated to rest and privacy. The primary bedroom is a calm retreat, finished with a TRAY CEILING that adds subtle architectural interest. The ensuite includes a FREESTANDING TUB, dual sinks, and a separate shower with bench seating. Two additional bedrooms are thoughtfully positioned away from the primary and share a full bathroom with dual sinks, and the laundry room is placed right in the middle of the layout for ease.
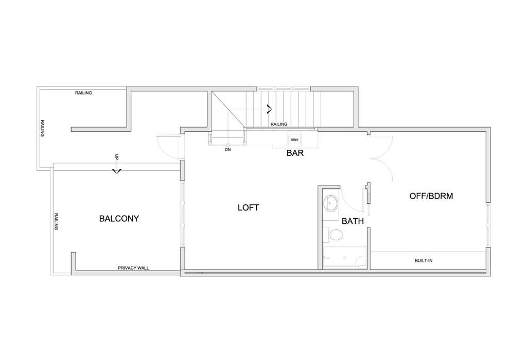
The upper loft level adds a lifestyle layer rarely found in inner-city homes. A spacious loft with a BAR and sink works as a media lounge or entertaining space, while a FLEX ROOM adapts easily as an office or guest room, complete with a private 4-pc ensuite. Outside, a TWO-TIER BALCONY offers an outdoor retreat, creating a private, elevated escape with room to relax or host w/ TV wall and FIREPIT.
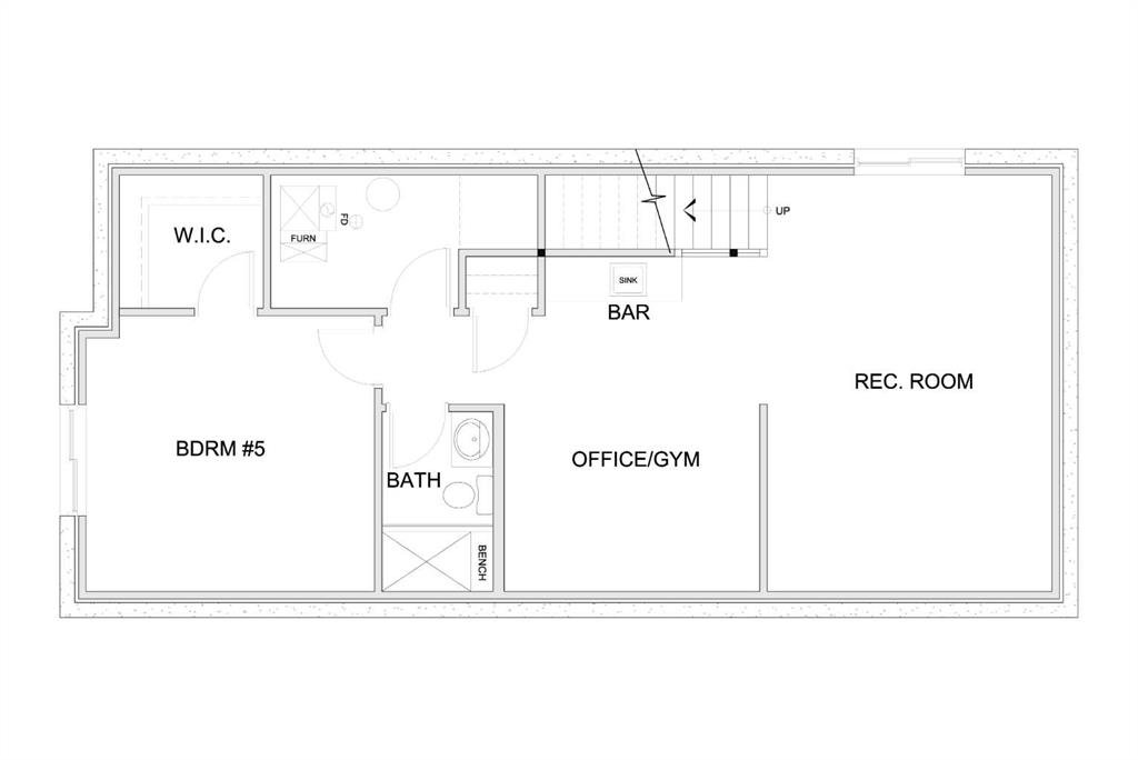
The fully developed basement continues the theme of flexibility and function. A large rec room is paired with a SECOND WET BAR and an OFFICE OR GYM space adapts easily to your needs. A 5th bedroom with walk-in closet and a full bath makes this level comfortable for guests or extended family.
Located in WEST HILLHURST, this home is minutes from the Bow River pathway system, West Hillhurst Community Centre, and Helicopter Park. Nearby schools include West Hillhurst School, Queen Elizabeth School, and Westmount Charter School. Kensington’s shops, cafes, and services along Kensington Rd and 10 S NW are close at hand, with quick access to downtown, Foothills Medical Centre, Alberta Children’s Hospital, and Memorial Dr. A walkable, established inner-city lifestyle with everything within reach.
Property Details
-
Property Type Semi Detached (Half Duplex), Residential
-
MLS Number A2280534
-
Property Size 2653.40 sqft
-
Bedrooms 4
-
Bathrooms 5
-
Garage 1
-
Year Built 2026
-
Property Status Active
-
Parking 2
-
Brokerage name RE/MAX House of Real Estate
Features & Amenities
- 3 or more Storey
- Asphalt Shingle
- Attached-Side by Side
- Bar
- Built-in Features
- Built-In Oven
- Clubhouse
- Dishwasher
- Double Garage Detached
- Double Vanity
- Electric
- Forced Air
- Freezer
- Full
- Garage Control s
- Gas Cooktop
- High Ceilings
- Kitchen Island
- Microwave
- Open Floorplan
- Other
- Pantry
- Park
- Playground
- Range Hood
- Recessed Lighting
- Refrigerator
- Rough-In
- Schools Nearby
- See Remarks
- Shopping Nearby
- Sidewalks
- Storage
- Tray Ceiling s
- Walking Bike Paths
- Wet Bar
Similar Listings
#32 1703 11 Avenue SW, Calgary, Alberta, T3C 0N5
- $159,900
- $159,900
- Bed: 1
- Bath: 1
- 513.50 sqft
- Apartment, Residential
13 minutes ago
13 minutes ago
360 Saddlemont Boulevard NE, Calgary, Alberta, T3J 0M8
- $839,900
- $839,900
- Beds: 7
- Baths: 5
- 2352.33 sqft
- Detached, Residential
13 minutes ago
13 minutes ago
48 Westover Drive SW, Calgary, Alberta, T3C 2S4
- $699,000
- $699,000
- Beds: 4
- Baths: 2
- 1064.79 sqft
- Detached, Residential
28 minutes ago
28 minutes ago
259 St Moritz, Calgary, Alberta, T3H 5X8
- $929,000
- $929,000
- Beds: 3
- Bath: 1
- 2065.20 sqft
- Detached, Residential
28 minutes ago
28 minutes ago
Are you interested in 2716 3 Avenue NW, Calgary, Alberta, T2N 0L7?
For over two decades, home buyers and sellers have come to depend on us for our expertise in buying and selling their properties.
LEt's Get Started
Work With Us
With years of experience helping local home Buyers and Sellers just like yourself in Cochrane and Calgary, Alberta, we know how to find the finest real estate properties and help you negotiate the best rates.
This site is protected by reCAPTCHA and the Google Privacy Policy and Terms of Service apply.
