- Home
- Commercial
- Industrial
- #2001 4 Highland Park Green NE, Airdrie, Alberta, T4A 2G2
#2001 4 Highland Park Green NE, Airdrie, Alberta, T4A 2G2
NONE, Airdrie
- A2298452
- MLS Number
- 0.19
- Lot sqft
- 2017
- Year Built
Property Description
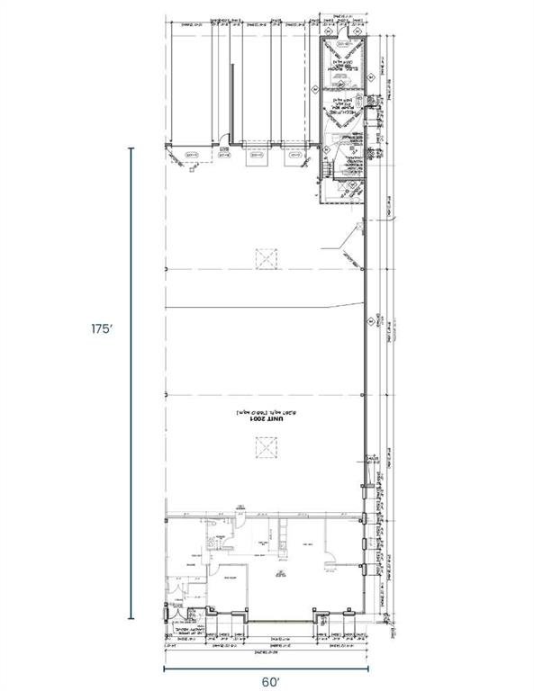
8,267 Sq. Ft. ‘A’ class industrial bay with dock and drive-in located in Airdrie’s Highland Park Industrial, which is Airdrie’s newest industrial park with high quality architectural controls. Airdrie has favorable property taxes compared to the City of Calgary, which has attracted many tenants and owner-users to this area. Developed by Beedie and awarded for excellence from the Urban Development Institute (UDI). The building is constructed in insulated concrete panels and EPDM roofing system. Quality industrial space with 1 drive-in door (12 Ft w x 14 Ft h) and 2 dock door (8 Ft w x 10 Ft h). Quality office space, which includes two private offices, open concept, kitchenette, and one accessible washroom.
5,367 SF of warehouse, 200 Amps of power at 347/600 Volts, 26 Ft of clear ceiling height, T5H0 lighting, two 6 Ft. x Ft. skylights, and ESFR sprinklers. And this bay also includes ample parking of 12 reserved parking stalls. No business tax and lower property tax compared to Calgary. Only three minutes to Highway 2 (QEII) and 12 minutes to City of Calgary (Stoney Trail). Availability is negotiable.
Property Details
-
Property Type Industrial, Commercial
-
MLS Number A2298452
-
Year Built 2017
-
Property Status Active
-
Brokerage name CDN Global Advisors Ltd.
Features & Amenities
Similar Listings
2 weeks ago
#103 118 East Lake Boulevard NE, Airdrie, Alberta, T4A 2G2
- $15
- $15
- Industrial, Commercial
2 weeks ago
2 weeks ago
#102 118 East Lake Boulevard NE, Airdrie, Alberta, T4A 2G2
- $15
- $15
- Industrial, Commercial
2 weeks ago
2 weeks ago
#220 52 Gateway Drive NE, Airdrie, Alberta, T4B 0J6
- $974,900
- $974,900
- Office, Commercial
2 weeks ago
2 weeks ago
Are you interested in #2001 4 Highland Park Green NE, Airdrie, Alberta, T4A 2G2?
For over two decades, home buyers and sellers have come to depend on us for our expertise in buying and selling their properties.
LEt's Get Started
Work With Us
With years of experience helping local home Buyers and Sellers just like yourself in Cochrane and Calgary, Alberta, we know how to find the finest real estate properties and help you negotiate the best rates.
This site is protected by reCAPTCHA and the Google Privacy Policy and Terms of Service apply.
