- Home
- Residential
- Row/Townhouse
- 139 Woodglen Grove SW, Calgary, Alberta, T2W 4J9
139 Woodglen Grove SW, Calgary, Alberta, T2W 4J9
Woodbine, Calgary
- A2304210
- MLS Number
- 2
- Bedrooms
- 2
- Bathrooms
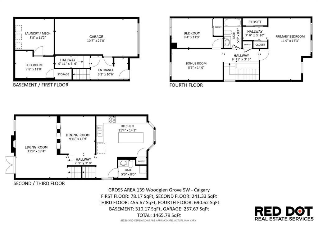
- 1465.79
- sqft
- 1981
- Year Built
Property Description
Woodbine…Secluded… Bright & Spacious… Attached Garage….MOVE IN READY… Does this spark your interest? Odds are this is the condo you’ve been looking for and thought you’d never find!
Offering over 1500 SF of developed living space this 2 bed 2 bath end-unit townhouse will wow you. You’ll love the beautiful wood feature wall welcome you home, leading to the cozy living room with a stone fireplace, soaring vaulted ceiling and a sliding glass door to a fully fenced private yard with low maintenance land scaping. There is a full sized dining room for your big family gatherings… an amazing chef’s dream kitchen featuring a huge island, stainless steel appliances, wall bar, pantry, and a wall of windows letting in the morning sun – you’ll have a spot for all your small appliances and all your guests can hang out in the heart of your new home!
The end-unit wall with bonus windows fills the home with natural light as you head upstairs to the master suite of your dreams, an enormous getaway including a huge closet space. There’s also an open loft living area offering terrific views to the west, a 4 piece bath and a second bedroom.
The spacious single attached garage is longer than average allowing for storage. The lower level has a flex room that works equally well as a gym, office or project space. The separate laundry room shares the utility room and is complete with a utility sink and additional storage room.
This well maintained and responsibly managed condo is the ‘complete package’ and is located steps from the Woodbine Safeway and only minutes from Fish Creek Provincial Park, Buffalo Run Costco, the Max Yellow Bus, the Rotary Mattamy Greenway, and easy access to Stoney Trail. Exterior updates including paint were recently completed by the condo, the condo is responsible for windows and doors, and allows dogs with approval.
Property Details
-
Property Type Row/Townhouse, Residential
-
MLS Number A2304210
-
Property Size 1465.79 sqft
-
Bedrooms 2
-
Bathrooms 2
-
Garage 1
-
Year Built 1981
-
Property Status Active
-
Parking 2
-
Brokerage name Hope Street Real Estate Corp.
Features & Amenities
- 4 Level Split
- Asphalt Shingle
- Decorative
- Dishwasher
- Dryer
- Electric Stove
- Forced Air
- Front Porch
- High Ceilings
- Kitchen Island
- Microwave Hood Fan
- Natural Gas
- No Animal Home
- No Smoking Home
- Park
- Partial
- Playground
- Private Yard
- Refrigerator
- Schools Nearby
- See Remarks
- Shopping Nearby
- Sidewalks
- Single Garage Attached
- Walk-In Closet s
- Walking Bike Paths
- Washer
- Wood Burning
Similar Listings
#909 135 13 Avenue SW, Calgary, Alberta, T2R0V8
- $335,000
- $335,000
- Bed: 1
- Bath: 1
- 698.99 sqft
- Apartment, Residential
34 minutes ago
34 minutes ago
2604 106 Avenue SW, Calgary, Alberta, T2W 2J1
- $589,000
- $589,000
- Beds: 4
- Baths: 3
- 1192.00 sqft
- Detached, Residential
34 minutes ago
34 minutes ago
554 Riverfront Lane SE, Calgary, Alberta, T2G 1K1
- $565,000
- $565,000
- Beds: 2
- Baths: 3
- 1277.00 sqft
- Row/Townhouse, Residential
34 minutes ago
34 minutes ago
59 Edgebrook Circle NW, Calgary, Alberta, T3A 5A4
- $820,000
- $820,000
- Beds: 5
- Baths: 3
- 1427.09 sqft
- Detached, Residential
34 minutes ago
34 minutes ago
Are you interested in 139 Woodglen Grove SW, Calgary, Alberta, T2W 4J9?
For over two decades, home buyers and sellers have come to depend on us for our expertise in buying and selling their properties.
LEt's Get Started
Work With Us
With years of experience helping local home Buyers and Sellers just like yourself in Cochrane and Calgary, Alberta, we know how to find the finest real estate properties and help you negotiate the best rates.
This site is protected by reCAPTCHA and the Google Privacy Policy and Terms of Service apply.
