- Home
- Residential
- Detached
- 1288 Sunvista Way SE, Calgary, Alberta, T2X 3G3
1288 Sunvista Way SE, Calgary, Alberta, T2X 3G3
Sundance, Calgary
- A2305807
- MLS Number
- 5
- Bedrooms
- 3
- Bathrooms
- 2035.00
- sqft
- 0.12
- Lot sqft
- 1992
- Year Built
Property Description
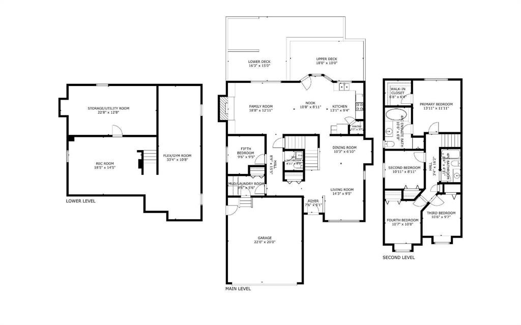
Open House – Saturday May 2, 12-2pm | We’re pleased to be presenting this beautifully maintained family home in the sought-after lake community of Sundance—offering the perfect blend of comfort, functionality, and year-round lifestyle. This spacious two-storey home has an amazing yard that backs onto a playground and park so you can keep an eye on your little ones from the kitchen! The home itself features 4 bedrooms up, ideal for growing families, along with a versatile main floor office or optional bedroom—perfect for guests or working from home. The heart of the home showcases rich hardwood flooring, creating a warm and inviting main level designed for both everyday living and entertaining. The kitchen is open to the family room and features updated stainless-steel appliances, beautiful oak cabinets, and granite counters. Upstairs, the generous primary retreat includes a 5-piece ensuite and a walk-in closet, along with the 3-additional bedrooms and a shared 4-pc bathroom. The fully developed basement adds even more living space with brand new carpet and a pool table included—making it the ultimate hangout zone. Major updates provide peace of mind: double-pane windows (2023), central A/C (2022), hot water tank (2023), and all Poly-B plumbing has been replaced with PEX. The roof is approximately 10 years old, and the home is equipped with a wood-burning fireplace with gas starter, complete with upgraded chimney paneling and refractory walls. Step outside to enjoy your private backyard, already wired for a hot tub with electrical conveniently run beneath the deck—ready for your future oasis. The deck and pergola are beautiful and help expand your ability to host and enjoy the setting. The yard has a trailer gate with ample trailer parking as well. Of course, having the playground and park right out your back gate will be a hit and keep your kids outside getting sun in their eyes and wind in their hair. Residents of Sundance have access to one of the most desirable lakes in the city, as it offers year-round recreation including swimming, skating, schools, parks, and quick access to major routes. Fish Creek Park is a bike ride away, and for active families you really can’t ask for more. This is a fantastic opportunity to own a move-in-ready home in a prime family neighbourhood, we’d love to accommodate your showing needs!
Property Details
-
Property Type Detached, Residential
-
MLS Number A2305807
-
Property Size 2035.00 sqft
-
Bedrooms 5
-
Bathrooms 3
-
Garage 1
-
Year Built 1992
-
Property Status Active
-
Parking 4
-
Brokerage name RE/MAX Landan Real Estate
Features & Amenities
- 2 Storey
- Alley Access
- Asphalt Shingle
- Built-in Features
- Ceiling Fan s
- Central Air
- Closet Organizers
- Deck
- Dishwasher
- Double Garage Attached
- Electric Stove
- Forced Air
- Front Porch
- Full
- Garage Faces Front
- Garden
- Gas Starter
- Kitchen Island
- Lake
- Pantry
- Park
- Parking Pad
- Patio
- Playground
- Private Yard
- Range Hood
- Refrigerator
- RV Access Parking
- Schools Nearby
- Shopping Nearby
- Soaking Tub
- Storage
- Walk-In Closet s
- Washer Dryer
- Window Coverings
- Wood Burning
Similar Listings
210 Silverado Plains Circle SW, Calgary, Alberta, T2X 0R5
- $849,900
- $849,900
- Beds: 4
- Baths: 4
- 1875.00 sqft
- Detached, Residential
9 minutes ago
9 minutes ago
#809 325 3 Street SE, Calgary, Alberta, T2G0T9
- $365,000
- $365,000
- Beds: 2
- Baths: 2
- 913.58 sqft
- Apartment, Residential
9 minutes ago
9 minutes ago
24 Westwood Crescent SW, Calgary, Alberta, T3C 2W6
- $675,000
- $675,000
- Beds: 4
- Baths: 2
- 1394.33 sqft
- Detached, Residential
9 minutes ago
9 minutes ago
40 Deermont Road SE, Calgary, Alberta, T2J5T5
- $650,000
- $650,000
- Beds: 5
- Baths: 3
- 1231.00 sqft
- Detached, Residential
9 minutes ago
9 minutes ago
Are you interested in 1288 Sunvista Way SE, Calgary, Alberta, T2X 3G3?
For over two decades, home buyers and sellers have come to depend on us for our expertise in buying and selling their properties.
LEt's Get Started
Work With Us
With years of experience helping local home Buyers and Sellers just like yourself in Cochrane and Calgary, Alberta, we know how to find the finest real estate properties and help you negotiate the best rates.
This site is protected by reCAPTCHA and the Google Privacy Policy and Terms of Service apply.
