- Home
- Commercial
- Industrial
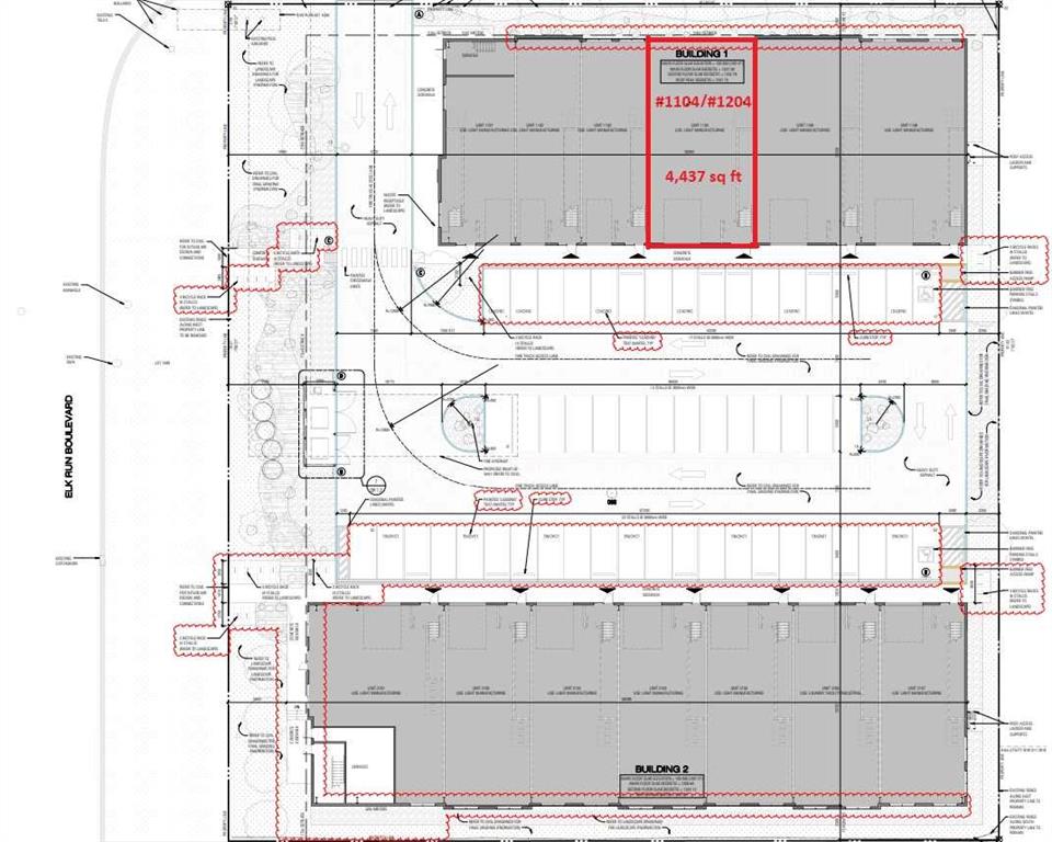
- #1104 100 Alpine Meadows, Canmore, Alberta, T1W 1L1
#1104 100 Alpine Meadows, Canmore, Alberta, T1W 1L1
Elk Run, Canmore
- A2292271
- MLS Number
- 2024
- Year Built
Property Description
Elk Meadows is Canmore’s newest warehouse development showcasing an updated Alpine architecture. With high exposure to Elk Run Boulevard and close proximity to the Trans-Canada Highway, the property offers quick access to all areas of Canmore and the surrounding region. This well-engineered two-storey building incorporates structural steel construction and concrete floors. The unit offers 2,043 sq. ft., featuring a 12′ x 12′ drive-in door and 16′ clear ceiling height. Ample power service of 200A, 208V, and the building is equipped with a full sprinkler system. This is an excellent opportunity for contractors, service companies, breweries, recreational facilities, offices, studios, and pubs. The Landlord will construct a washroom and office as part of a Tenant Inducement Allowance. Operating costs are in addition to base rent and estimated at $7.40 sq ft. Available Immediately.
Property Details
-
Property Type Industrial, Commercial
-
MLS Number A2292271
-
Year Built 2024
-
Property Status Active
-
Parking 53
-
Brokerage name LB Hubbard Realty Group
Features & Amenities
Similar Listings
#110A 1 Industrial Place, Canmore, Alberta, T1W 1Y1
- $819,900
- $819,900
- Industrial, Commercial
1 week ago
1 week ago
#103 104 Kananaskis Way, Canmore, Alberta, T1W2X2
- $419,850
- $419,850
- Mixed Use, Commercial
2 weeks ago
2 weeks ago
1405 & 1409 Mountain Avenue, Canmore, Alberta, T1W 1M3
- $3,700,000
- $3,700,000
- Commercial, Multi-Family
2 months ago
2 months ago
#4 1302 Bow Valley Trail, Canmore, Alberta, T1W1N6
- $569,000
- $569,000
- Mixed Use, Commercial
2 months ago
2 months ago
Are you interested in #1104 100 Alpine Meadows, Canmore, Alberta, T1W 1L1?
For over two decades, home buyers and sellers have come to depend on us for our expertise in buying and selling their properties.
LEt's Get Started
Work With Us
With years of experience helping local home Buyers and Sellers just like yourself in Cochrane and Calgary, Alberta, we know how to find the finest real estate properties and help you negotiate the best rates.
This site is protected by reCAPTCHA and the Google Privacy Policy and Terms of Service apply.
