- Home
- Residential
- Row/Townhouse
- #101 1729 31 Street SW, Calgary, Alberta, T3C 1N2
#101 1729 31 Street SW, Calgary, Alberta, T3C 1N2
Shaganappi, Calgary
- A2255993
- MLS Number
- 6
- Bedrooms
- 5
- Bathrooms
- 1621.00
- sqft
- 2025
- Year Built
Property Description
Experience modern urban living in this brand-new townhouse in the highly desirable community of Shaganappi!
Situated in a prime inner-city location, you’re just a 7-minute walk to EB Westbrook CTrain Station, providing quick access to downtown and beyond. Nearby, enjoy the Shaganappi Point Golf Course, as well as shopping and dining options including Walmart, Shoppers Drug Mart, McDonald’s, and more.
Offering 1,621.3 sq.ft. of thoughtfully designed living space, this 6-bedroom, 4.5-bathroom home is currently under construction, with an estimated possession in November 2025 (negotiable). This is a rare opportunity to own a never-lived-in property in one of Calgary’s most convenient and established neighborhoods.
Legal Secondary Suite | Rental Potential | Multi-Generational Flexibility
One of the biggest highlights of this property is the fully legal secondary suite, offering separate entrance, kitchen, bathroom, laundry, and living area. This space can serve as an ideal setup for multi-generational living, a guest suite, or even a private home office or studio. The suite’s independent design ensures privacy and functionality for both you and your tenants. It comes with in floor heating in the basement.
The main floor features a bright, open-concept layout where the kitchen, dining, and living areas flow seamlessly together — perfect for both relaxed daily living and entertaining guests. The home showcases luxury finishes throughout, including premium cabinetry, designer fixtures, and high-quality flooring that elevate the space.
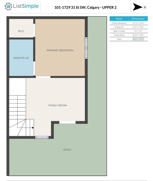
On the second floor, you’ll find three well-sized bedrooms and two full bathrooms, ideal for family members, guests, or a dedicated home office. The third floor is a private retreat dedicated to the primary suite and bonus room, complete with a walk-in closet and a spacious ensuite. This top-floor layout provides maximum privacy and an elevated sense of space.
Enjoy outdoor living on the impressive 10’6” × 20’5” patio, perfect for summer gatherings and BBQs. The exterior design combines modern woodboard and stucco for stylish curb appeal. Low condo fees make ownership even more attractive.
Don’t miss this chance to own a brand-new, luxury-finished townhouse with a legal secondary suite — combining rental potential, lifestyle flexibility, and long-term value — all within walking distance to transit, golf, shopping, and restaurants in the heart of Shaganappi.
Contact your Realtor today for more details and to secure your new address! (Talk to your accountant about the GST new housing rebate.)
Property Details
-
Property Type Row/Townhouse, Residential
-
MLS Number A2255993
-
Property Size 1621.00 sqft
-
Bedrooms 6
-
Bathrooms 5
-
Garage 1
-
Year Built 2025
-
Property Status Active
-
Parking 1
-
Brokerage name TrustPro Realty
Features & Amenities
Similar Listings
Similar Listings
8562 Huxbury Drive NE, Calgary, Alberta, T2A 4Y1
- $571,800
- $571,800
- Beds: 4
- Baths: 3
- 1696.00 sqft
- Semi Detached (Half Duplex), Residential
40 minutes ago
40 minutes ago
#1312 755 COPPERPOND Boulevard SE, Calgary, Alberta, T2Z 4R2
- $324,999
- $324,999
- Beds: 2
- Baths: 2
- 771.70 sqft
- Apartment, Residential
40 minutes ago
40 minutes ago
8554 Huxbury Drive NE, Calgary, Alberta, T2A 4Y1
- $564,800
- $564,800
- Beds: 4
- Baths: 3
- 1685.00 sqft
- Semi Detached (Half Duplex), Residential
40 minutes ago
40 minutes ago
4610 84 Street NW, Calgary, Alberta, T3B 2P5
- $919,000
- $919,000
- Beds: 3
- Baths: 3
- 2053.00 sqft
- Semi Detached (Half Duplex), Residential
2 hours ago
2 hours ago
Are you interested in #101 1729 31 Street SW, Calgary, Alberta, T3C 1N2?
For over two decades, home buyers and sellers have come to depend on us for our expertise in buying and selling their properties.
LEt's Get Started
Work With Us
With years of experience helping local home Buyers and Sellers just like yourself in Cochrane and Calgary, Alberta, we know how to find the finest real estate properties and help you negotiate the best rates.
This site is protected by reCAPTCHA and the Google Privacy Policy and Terms of Service apply.
