- Home
- Residential
- Detached
- 1009 18 Avenue NW, Calgary, Alberta, T2M 0V8
1009 18 Avenue NW, Calgary, Alberta, T2M 0V8
Mount Pleasant, Calgary
- A2304768
- MLS Number
- 4
- Bedrooms
- 4
- Bathrooms
- 1959.34
- sqft
- 0.07
- Lot sqft
- 2026
- Year Built
Property Description
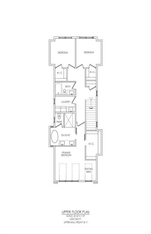
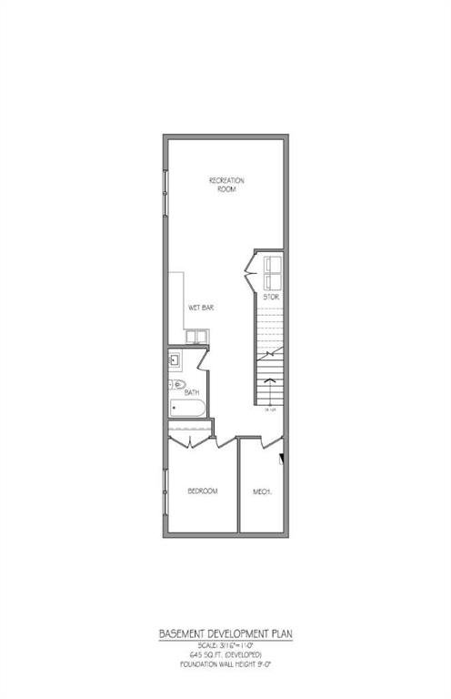
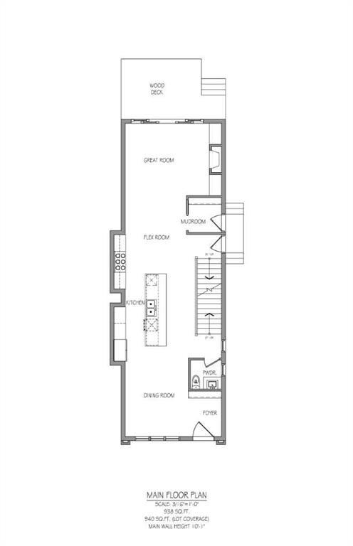
BRAND-NEW HIGH-END DETACHED INFILL COMING SOON IN MOUNT PLEASANT. 90% complete and available for a Spring/Summer possession. Offering over 2,691 sq. ft. of expertly developed living space across three levels, this beautifully appointed luxury infill features 4 bedrooms (3 up, 1 down), 3.5 bathrooms, a fully finished basement, and a double detached garage. Blending timeless design, quality craftsmanship, and an unbeatable inner-city location, this is a home that stands apart. The main floor makes an immediate impression with soaring 10-ft ceilings, 8-ft doors, wide-plank engineered hardwood, and a bright open-concept layout designed for everyday living and entertaining alike. At the centre of the home, the chef-inspired galley kitchen showcases an oversized 12-ft quartz island with fluted detailing, ceiling-height Shaker cabinetry, full quartz backsplash, and a premium KitchenAid appliance package including a gas cooktop, wall oven, built-in microwave, dishwasher, and French-door refrigerator. The adjoining living room is anchored by a sleek linear gas fireplace with a brick surround, while the dining area opens seamlessly to the sunny south-facing backyard. A functional mudroom with built-in storage and a designer powder room complete the main level. A statement hardwood staircase with integrated LED lighting leads upstairs, where engineered hardwood continues throughout. The spacious primary retreat offers oversized windows, built-in speakers, and room for a lounge area or home office setup. The spa-inspired 5-piece ensuite is designed for relaxation, featuring heated tile floors, a freestanding soaker tub, dual quartz vanity, private water closet, and an oversized tiled shower with rainfall head, body jets, bench seating, and steam rough-in. A large custom walk-in closet completes the retreat. Two additional bedrooms, each with walk-in closets, share a beautifully finished main bath with quartz counters and full-height tile surround. The upper laundry room is equally well appointed with cabinetry, quartz counters, and sink. The fully finished basement offers impressive additional living space with 9-ft ceilings, a large recreation room with built-in entertainment unit, extended wet bar, fourth bedroom with walk-in closet, and full bathroom—ideal for guests, teens, or a private work-from-home setup. Exterior highlights include James Hardie board and brick siding, a large rear deck with gas line, full landscaping, pressure-treated fencing, and concrete walkways leading to the double detached garage. Mechanical upgrades include a high-efficiency furnace, HRV system, humidifier, 50-gallon hot water tank, 200-amp electrical service, plus rough-ins for central air conditioning and central vacuum. A rare opportunity to own a thoughtfully designed, high-quality home in one of Calgary’s most desirable inner-city communities.
Property Details
-
Property Type Detached, Residential
-
MLS Number A2304768
-
Property Size 1959.34 sqft
-
Bedrooms 4
-
Bathrooms 4
-
Garage 1
-
Year Built 2026
-
Property Status Active
-
Parking 2
-
Brokerage name RE/MAX House of Real Estate
Features & Amenities
- 2 Storey
- Asphalt Shingle
- Bar Fridge
- BBQ gas line
- Bookcases
- Brick Facing
- Built-in Features
- Built-In Oven
- Closet Organizers
- Deck
- Double Garage Detached
- Double Vanity
- Dryer
- Forced Air
- Full
- Gas
- Gas Cooktop
- High Ceilings
- Kitchen Island
- Microwave
- No Animal Home
- No Smoking Home
- Open Floorplan
- Pantry
- Park
- Playground
- Pool
- Range Hood
- Refrigerator
- Rough-In
- Schools Nearby
- Shopping Nearby
- Sidewalks
- Soaking Tub
- Street Lights
- Walk-In Closet s
- Walking Bike Paths
- Washer
- Wet Bar
Similar Listings
#148 3809 45 Street SW, Calgary, Alberta, T3E 3H4
- $229,500
- $229,500
- Beds: 3
- Bath: 1
- 870.81 sqft
- Row/Townhouse, Residential
12 minutes ago
12 minutes ago
15 Sherwood Square NW, Calgary, Alberta, T3R 0N7
- $875,000
- $875,000
- Beds: 6
- Baths: 5
- 2596.17 sqft
- Detached, Residential
42 minutes ago
42 minutes ago
817 17 Avenue SE, Calgary, Alberta, T2G 1J2
- $749,900
- $749,900
- Beds: 3
- Baths: 2
- 1046.01 sqft
- Detached, Residential
42 minutes ago
42 minutes ago
#906 1501 6 Street SW, Calgary, Alberta, T2R 0Z7
- $269,000
- $269,000
- Bed: 1
- Bath: 1
- 457.87 sqft
- Apartment, Residential
42 minutes ago
42 minutes ago
Are you interested in 1009 18 Avenue NW, Calgary, Alberta, T2M 0V8?
For over two decades, home buyers and sellers have come to depend on us for our expertise in buying and selling their properties.
LEt's Get Started
Work With Us
With years of experience helping local home Buyers and Sellers just like yourself in Cochrane and Calgary, Alberta, we know how to find the finest real estate properties and help you negotiate the best rates.
This site is protected by reCAPTCHA and the Google Privacy Policy and Terms of Service apply.
